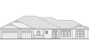
PDF Flyer Stone House I Beds: 3 Baths: 2.5 Garages: 3 Finished Sq Ft: 2,435 Total Sq Ft: 3,424 Extras: Den, Covered Patio Elevation A Floor Plan A